Мальта с баней
+7 (982) 778-7270

Качественные дома в Тюмени

Мальта с баней

62 м2, каркасный дом, 1 спальня

Мальта с баней

Скважина и септик в подарок при покупке дома

 
площадь

62

 
срок изготовления

45 дней

 
стоимость

4 550 000

Доставка по Уральскому округу
Срок изготовления 30-60 дней. Пока другие строят годами, вы уже празднуете новоселье. Авторский дизайн, панорамное остекление и безупречный стиль.
Станьте эталоном в своем поселке.

Модульный дом, который меняет представление о комфорте.
Всегда на первом месте стоит человек. Нам важно не просто «продать квадратные метры», услышав ваш запрос и реализовать его с хирургической глубиной. Мы работаем с проверенными подрядчиками, выбирая только модульные решения, которые бы выбрали для себя.

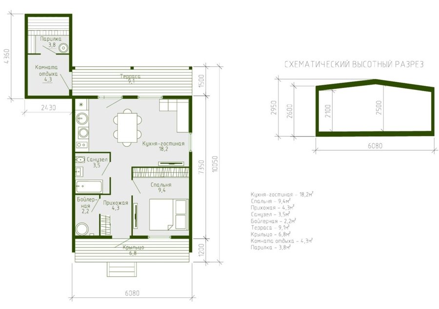
ПЛАНИРОВКа дома

Мальта с баней

Площадь от 62 м2

от 4.550.000 руб

возьмите максимум от вашей покупки

акции ограничены, успейте воспользоваться уникальными предложениями

Рассрочка

Без увеличения стоимости

Ипотека

6% на все модульные дома

Подарки

Скважина и септик в подарок до 30 апреля

БЕЗ первоначального взноса!

Отсутствие комиссии банка и издержки по отсутствию ПВ (первоначального взноса)

ипотечный калькулятор

укажите параметры и рассчитайте ежемесячный платеж

4 600 000 4 600 000
20% 100%
1
1 30
* Расчёты не являются публичной офертой. Конечные условия кредитования определяются банком после рассмотрения заявки
Пожалуйста, укажите телефон
Согласен на обработку персональных данных
Необходимо согласие

Мальта с баней комплектация дома:

Это фундамент из металлических свай с лопастями на концах. Сваи вкручивают в землю как большие шурупы. Они изготавливаются из легированной стали высокого качества. Преимущества свайно-винтового фундамента: высокая прочность — он не растрескивается как бетонный, не боится снега, дождя и мороза, простота возведения — для его монтажа не требуется копка траншей и котлованов, невысокая цена

Основу каркасного дома составляют сухие строганные доски, из которых изготавливаются стойки, косые и поперечные элементы стен. Обязательно проходит термическую обработку, благодаря которой из древесины удаляется лишняя влага.
Преимущества материала: высокая плотность, незначительная усадка каркаса, экологичность, ускорение темпов строительства

При монтаже деревянных междуэтажных перекрытий между стенами укладывают толстые деревянные балки, на которые устанавливают лаги. На лаги, в свою очередь, монтируется пол.
Плюсы деревянных перекрытий: простота возведения — для монтажа не нужно привлекать специальную технику, малый вес конструкции, большой выбор пиломатериалов, экологичность, низкая теплопроводность

ПВХ-мембрана.
Плотный и пластичный рулонный материал. Производится из поливинилхлорида, имеет отличные показатели пожаробезопасности.
Среди других преимуществ
• небольшой вес, то есть материал не оказывает давления на перекрытия
• простой монтаж
• прочность и эластичность

Межкомнатные двери, натяжные потолки, линолеум, санузел в чистовой отделке

Парная: отделка выполнена из липы, что обеспечивает приятную атмосферу и хорошую теплоизоляцию. Липа обладает антисептическими свойствами и создает комфортные условия для отдыха.
Печь: установлена твердотопливная печь, которая обеспечивает равномерное и эффективное прогревание парной и комнаты отдыха. Надежная и безопасная, она позволяет наслаждаться традиционной банной процедурой.

ОНЛАЙН КОНСУЛЬТАЦИЯ

получите больше информации о проекте
и задайте свои вопросы

НЕ НАШЛИ ПОДХОДЯЩЕЕ?

Укажите параметры дома, и мы подберем варианты в течение дня бесплатно

Пожалуйста, укажите телефон
Согласен на обработку персональных данных
Необходимо согласие
Написать в мессенджер