63,2 м2, каркасный дом, 2 спальни

Астин

Скважина и септик в подарок при покупке дома

 
площадь

63,2

 
завершение

45 дней

 
стоимость

4 850 000

Доставка по Уральскому округу
Срок изготовления 30-60 дней. Пока другие строят годами, вы уже празднуете новоселье. Авторский дизайн, панорамное остекление и безупречный стиль.
Станьте эталоном в своем поселке.

Модульный дом, который меняет представление о комфорте.
Всегда на первом месте стоит человек. Нам важно не просто «продать квадратные метры», услышав ваш запрос и реализовать его с хирургической глубиной. Мы работаем с проверенными подрядчиками, выбирая только модульные решения, которые бы выбрали для себя.

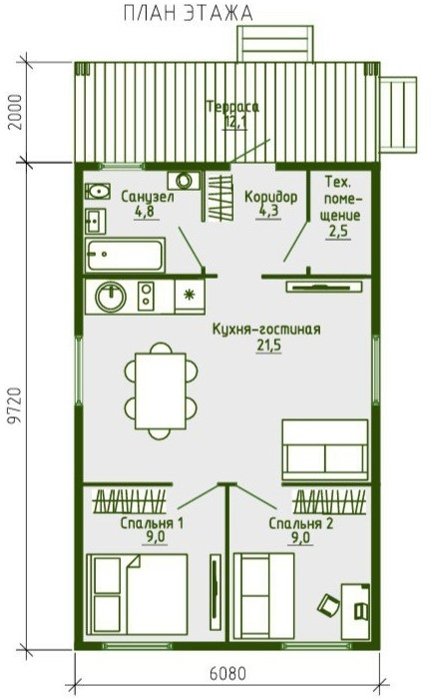
ПЛАНИРОВКа дома

Астин

Площадь от 63.2 м2

от 4.850.000 руб

БЕЗ первоначального взноса!

Отсутствие комиссии банка и издержки по отсутствию ПВ (первоначального взноса)

ипотечный калькулятор

укажите параметры и рассчитайте ежемесячный платеж

4 900 000 4 900 000
20% 100%
1
1 30
* Расчёты не являются публичной офертой. Конечные условия кредитования определяются банком после рассмотрения заявки
Пожалуйста, укажите телефон
Согласен на обработку персональных данных
Необходимо согласие

Астин комплектация дома:

Это фундамент из металлических свай с лопастями на концах. Сваи вкручивают в землю как большие шурупы. Они изготавливаются из легированной стали высокого качества. Преимущества свайно-винтового фундамента: высокая прочность — он не растрескивается как бетонный, не боится снега, дождя и мороза, простота возведения — для его монтажа не требуется копка траншей и котлованов, невысокая цена

Основу каркасного дома составляют сухие строганные доски, из которых изготавливаются стойки, косые и поперечные элементы стен. Обязательно проходит термическую обработку, благодаря которой из древесины удаляется лишняя влага.
Преимущества материала: высокая плотность, незначительная усадка каркаса, экологичность, ускорение темпов строительства

При монтаже деревянных междуэтажных перекрытий между стенами укладывают толстые деревянные балки, на которые устанавливают лаги. На лаги, в свою очередь, монтируется пол.
Плюсы деревянных перекрытий: простота возведения — для монтажа не нужно привлекать специальную технику, малый вес конструкции, большой выбор пиломатериалов, экологичность, низкая теплопроводность

ПВХ-мембрана.
Плотный и пластичный рулонный материал. Производится из поливинилхлорида, имеет отличные показатели пожаробезопасности.
Среди других преимуществ
• небольшой вес, то есть материал не оказывает давления на перекрытия
• простой монтаж
• прочность и эластичность

Межкомнатные двери, натяжные потолки, линолеум, санузел в чистовой отделке

ОНЛАЙН КОНСУЛЬТАЦИЯ

получите больше информации о проекте
и задайте свои вопросы

НЕ НАШЛИ ПОДХОДЯЩЕЕ?

Укажите параметры дома, и мы подберем варианты в течение дня бесплатно

Пожалуйста, укажите телефон
Согласен на обработку персональных данных
Необходимо согласие
Написать в мессенджер